La Tierra Takinogawa #208
117400

お気に入り
¥132,000/ mo
Including Management Fee ¥10,000
*Additional charges may be incurred
*For more details, feel free to contact us.
*For more details, feel free to contact us.
Show more
|
Deposit
1 / mo
|
Key Money
1 / mo
|
|
Free Rent
-
|
Agent Fee
1 / mo + 10%
|
|
Lease Term
2 years
|
|
|
Renewal Fee
1 / mo of new rent fee
|
|
|
Parking
-
|
|
La Tierra Takinogawa #208
5-43-8 Takinogawa, Kita-ku, Tokyo , 1140023
- FREE CONSULTATION
- Our bilingual experienced agents will help you in every steps. Please let us know any questions or requests.
While these properties are representative of those we offer, due to the time it takes to update listings, the exact units shown unfortunately may no longer be available. If you are interested in a property, please feel free to contact us. If it is no longer available we will be happy to find you a similar property at a competitive price!
Details
1
Bed(s) +
1 Bath
+ 1 Living
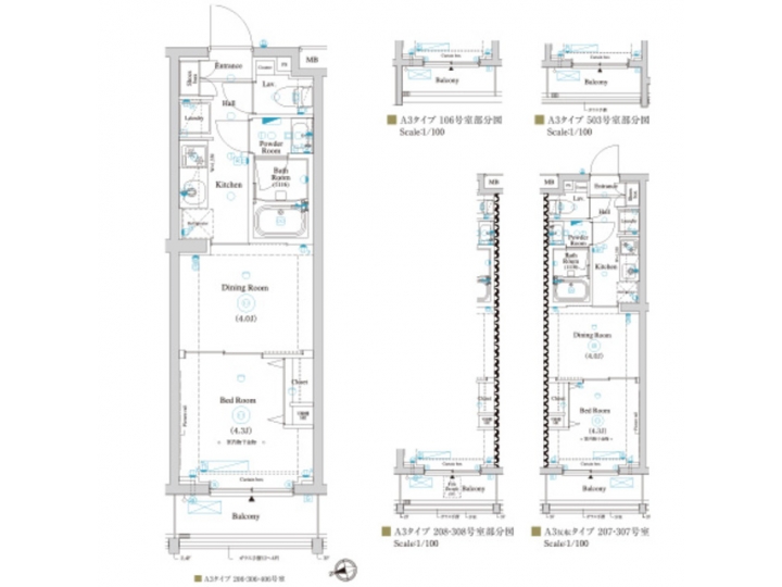
| Size | 25.34 ㎡ [272.7 sqft.] |
|---|---|
| Built | March 2020 |
| Special features |
Air Conditioner , Separate Bathroom and Toilet |
| Station |
JR Saikyo Line
Itabashi Station 8min. walk Toei Mita Line Shin-itabashi Station 5min. walk |
| #409 |
¥135,000/ mo
1 Bath
+ 1 Living
| 25.34 ㎡ [272.7 sqft]
|
|---|---|
| #407 |
¥135,000/ mo
1 Bath
+ 1 Living
| 25.34 ㎡ [272.7 sqft]
|
| #403 |
¥257,000/ mo
1
Bed(s) +
1 Bath
+ 1 Living
| 55.8 ㎡ [600.6 sqft]
|

















